| 
		 LH-16/3、20/5噸電動葫蘆雙梁起重機 
		
		  
		
		  主機結構主要由主梁、橫梁、大車運行機構。小車及小車運行機構和固定在小車架上的固定式電動葫蘆所組成,是一種有軌運行的輕中型起重機,工作制度適用A3-A6,工作環(huán)境溫度為一25℃-40℃范圍內,起重機有16/3t,20/5t,一般跨度為10.5~22.5米,電氣設備操縱形式有無線、有線地面操縱和操縱室操縱。 
		  本產品為一般用途起重機,多用于一般機械制造。裝配車間和倉庫等場所,用來搬運和裝卸物料。 
		  本產品不易在易燃、易爆的介質中或具有很大濕度腐蝕性氣體的場所工作。也不適用干吊運熔化的金屬、有毒物和易燃物的工作。 
		  
		
			
				| 
				 起重量  | 
				
				 t  | 
				
				 16/3  | 
				
				 20/5  | 
			 
			
				| 
				 跨度  | 
				
				 m  | 
				
				 10.5  | 
				
				 13.5  | 
				
				 16.5  | 
				
				 19.5  | 
				
				 22.5  | 
				
				 10.5  | 
				
				 13.5  | 
				
				 16.5  | 
				
				 19.5  | 
				
				 22.5  | 
			 
			
				| 
				 提升  | 
				
				 6;8;9;12  | 
			 
			
				| 
				 高度電源  | 
				
				    | 
				
				 三相交流380V 50HZ   | 
			 
			
				| 
				 大車運行機構  | 
				
				 地面  | 
				
				 速度  | 
				
				 m/min  | 
				
				 28.72  | 
			 
			
				| 
				 電動機  | 
				
				 型號  | 
				
				 YSE90L-4D  | 
			 
			
				| 
				 功率  | 
				
				 kw  | 
				
				 2*1.5  | 
				
				 4*1.5  | 
				
				 2*1.5  | 
				
				 4*1.5  | 
			 
			
				| 
				 操縱室  | 
				
				 速度  | 
				
				 m/min  | 
				
				 40  | 
			 
			
				| 
				 電動機  | 
				
				 型號  | 
				
				 YSE90L-4D  | 
			 
			
				| 
				 功率  | 
				
				 kw  | 
				
				 2*1.5  | 
				
				 4*1.5  | 
				
				 2*1.5  | 
				
				 4*1.5  | 
			 
			
				| 
				 小車  | 
				
				 葫蘆型號  | 
				
				 m/min  | 
				
				    6 
				CD13-9-A2 
				   12  | 
				
				     6 
				HC084A-8 
				    12  | 
				
				    6 
				CD15-9-A2 
				   12  | 
				
				     6 
				HC084A-8 
				    12  | 
			 
			
				| 
				 起升速度  | 
				
				 3.5/8  | 
			 
			
				| 
				 運行速度  | 
				
				 17  | 
			 
			
				| 
				 車輪直徑  | 
				
				 mm  | 
				
				 300  | 
			 
			
				| 
				 軌道面寬  | 
				
				 51-70  | 
			 
			
				| 
				 最大輪壓  | 
				
				 KN  | 
				
				 11481  | 
				
				 12200  | 
				
				 13031  | 
				
				 13636  | 
				
				 14704  | 
				
				 13655  | 
				
				 14427  | 
				
				 15355  | 
				
				 16044  | 
				
				 17003  | 
			 
			
				| 
				 總重量  | 
				
				 t  | 
				
				 7.6  | 
				
				 10.3  | 
				
				 13.6  | 
				
				 16  | 
				
				 20.6  | 
				
				 8.4  | 
				
				 10.6  | 
				
				 14.2  | 
				
				 16.8  | 
				
				 20.9  | 
			 
			
				| 
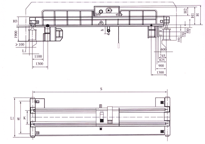
				 主要尺寸  | 
				
				    | 
				
				    | 
			 
			
				| 
				 K  | 
				
				    | 
				
				 
				1500(H-6m,9m);1800(H-6m,9m)  | 
			 
			
				| 
				 W  | 
				
				 
				3000(h-6m,9m);3500(H-12m)  | 
			 
			
				| 
				 L  | 
				
				 
				3550(H-6m,9m);4050(H-12m)  | 
			 
			
				| 
				 L1  | 
				
				 141  | 
			 
			
				| 
				 H  | 
				
				 2004  | 
				
				 2204  | 
				
				 2354  | 
				
				 2408  | 
				
				 2508  | 
				
				 2157  | 
				
				 2304  | 
				
				 2408  | 
				
				 2508  | 
				
				 2658  | 
			 
			
				| 
				 H1  | 
				
				 1765  | 
				
				 1965  | 
				
				 2115  | 
				
				 2169  | 
				
				 2269  | 
				
				 1917  | 
				
				 2067  | 
				
				 2171  | 
				
				 2271  | 
				
				 2421  | 
			 
			
				| 
				 H2  | 
				
				    | 
			 
			
				| 
				 H3  | 
				
				 839  | 
				
				 1039  | 
				
				 1189  | 
				
				 1243  | 
				
				 1343  | 
				
				 989  | 
				
				 1139  | 
				
				 1243  | 
				
				 1343  | 
				
				 1493  | 
			 
			
				| 
				 h  | 
				
				 30  | 
				
				 -170  | 
				
				 -320  | 
				
				 -374  | 
				
				 -474  | 
				
				 -72  | 
				
				 -222  | 
				
				 -326  | 
				
				 -425  | 
				
				 -576  | 
			 
		 
		 |